FUTURE LIVING GOSPEL CHURCH HOME
A Campaign Rooted in God’s Faithfulness
“Finish in Faith” is not ultimately about a building. It is about trusting the Lord to build His church, in His timing, for His glory.
Below you’ll find the full series of teachings that walk through the heart behind this campaign — the biblical foundation, the vision, and the call for our church family. We encourage you to watch, listen, and pray as we seek the Lord together.
Below you’ll find the full series of teachings that walk through the heart behind this campaign — the biblical foundation, the vision, and the call for our church family. We encourage you to watch, listen, and pray as we seek the Lord together.



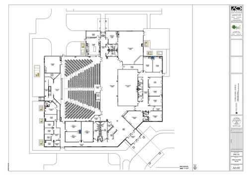
What started the campaign?
Well before the start of the 2020 pandemic, we began feeling the limitations of ministry because of our current building. After identifying our ministry needs, a gifted and dedicated Building Committee was formed and worked with Mast Construction on plans for a new church building. Those plans (see images above) were presented to the church and, in September 2021, we began a three year financial campaign.

Forward in Faith
We desire to build without taking on a crippling debt burden. For that reason, we have divided the project into three phases, with each phase completing about one-third of the project. In 2021 we raised sufficient pledges to begin the first phase of our new building. That first phase is now complete. At the end of 2024, the site preparation was completed and the finishing of the outer shell of our building began. From the outside it appears completed, but the inside has only minimal wood framing. The final phase includes everything necessary to complete the inside of the building, putting in a parking lot, and landscaping.
Finish in Faith
And now, by God’s grace, we are moving forward to complete this building project. We praise the Lord for His faithful provision that allowed us to purchase the land and start this building debt free. As we continue, we are trusting the Lord to supply what is needed to finish the work He has begun. This final phase represents a significant step of faith, and we are calling our church family to join together in prayerful, sacrificial generosity as we seek to Finish in Faith—for God’s glory and the growth of His church.

Jesus stated in Matthew 16, "...I will build my church, and the gates of Hades will not overcome it."
When Jesus makes a promise, He delivers.
In Acts 2, we witness the birth of His church, which has continued to grow ever since. As the Head of the church, Jesus has commissioned us to "make disciples of all nations", promising to be with us until His return. Since 1972, it has been our passion to see the Good News of Jesus Christ proclaimed among the nations, beginning right here in our local community. The ministry of Living Gospel Church has grown beyond the walls of our current building.
Our church has become more dedicated to the purpose of knowing Christ and making Christ known. In 2020, we chose to move ‘Forward in Faith’ by designing and raising funds for a new building. In 2024, we continued to move ‘Forward in Faith’ by breaking ground and completing the exterior of our new building. This valuable tool of ministry will be used to reach out to our community in new ways.
We are fully committed to ‘Finish in Faith’ what God has started. We have an opportunity to witness God’s faithfulness as we come together to do His will. Imagine what God could do with a people who count the costs and live out the Great Commission!
Our church has become more dedicated to the purpose of knowing Christ and making Christ known. In 2020, we chose to move ‘Forward in Faith’ by designing and raising funds for a new building. In 2024, we continued to move ‘Forward in Faith’ by breaking ground and completing the exterior of our new building. This valuable tool of ministry will be used to reach out to our community in new ways.
We are fully committed to ‘Finish in Faith’ what God has started. We have an opportunity to witness God’s faithfulness as we come together to do His will. Imagine what God could do with a people who count the costs and live out the Great Commission!

